Description
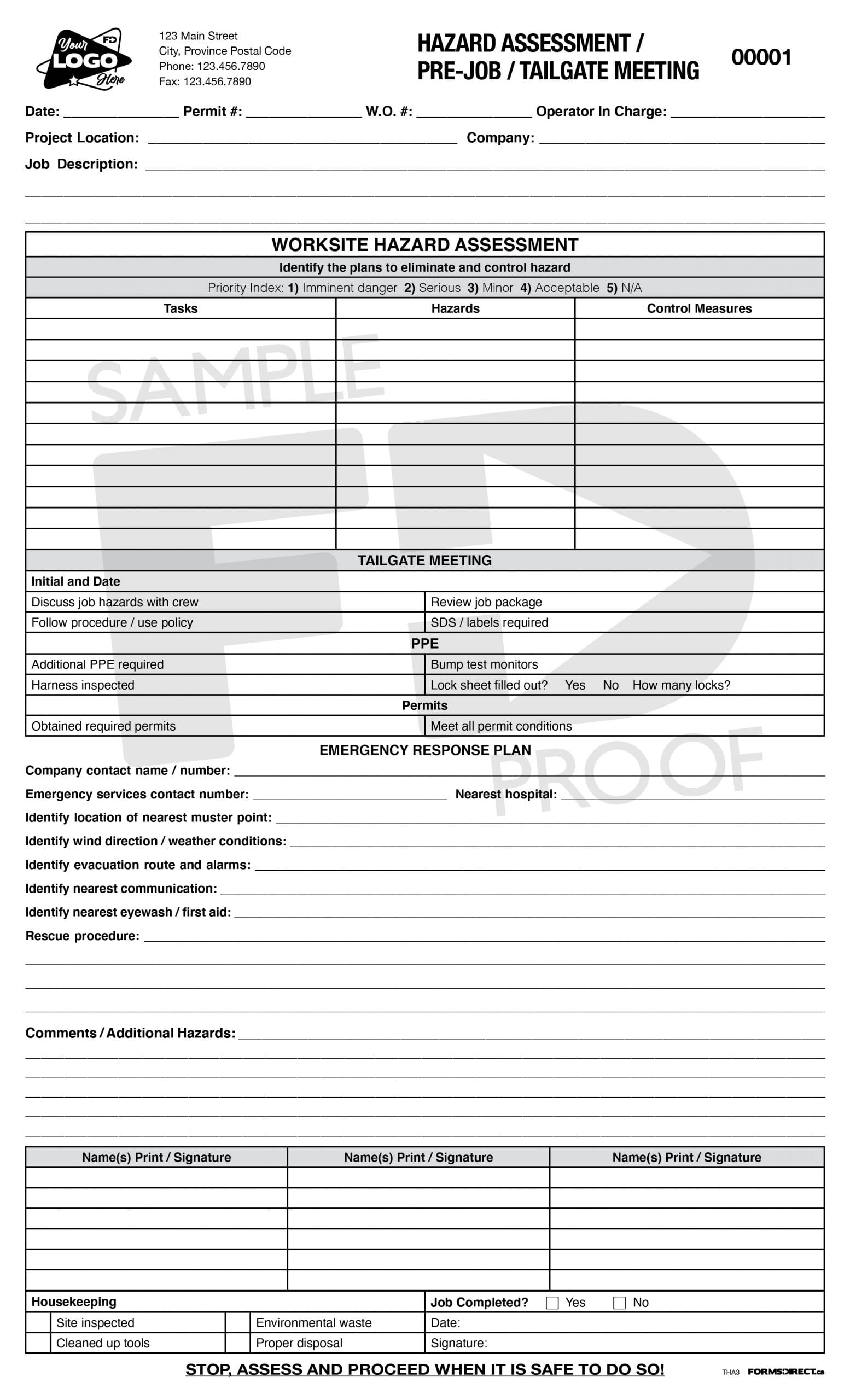
TASK HAZARD ASSESSMENT | THA3
THA3 ‘s legal-sized (8.5″ x 14″) page format combines three important safety forms into one. First up is a detailed hazard assessment area to detail your task, hazard and control measures. Secondly is a tailgate meeting section that reviews procedures, PPE and permit requirements. Then you can continue by documenting your detailed emergency response plan (ERP). The attendance log accommodates up to 18 names and then is followed by a housekeeping and job completion section at the bottom of the page.
Hazard assessments are an essential part of every corporate health & safety program. Not only is it a requirement of Occupational Health & Safety regulations to perform hazard assessments but they must also be properly documented as well. A Task Hazard Assessment, also known as a Job Safety Analysis, are completed in order to identify potential or existing hazards that may be present during the course of a specific job or task. The assessor will then put in place and record preventative measures to eliminate or mitigate the hazards.
Standard customization options include:
- Company logo
- Company header (address, phone, etc.)
- Form numbering
Need any of the field names modified to fit your company’s specific needs? No problem! Click HERE to visit our Print Your Own Design Calculators. Use “THA3” in the Template Code box to reference this form and detail the requested modifications in the Special Instructions field. Need different print specs than you see here? You can find a wider range of specifications with the Print Your Own Design as well.



Reviews
There are no reviews yet.